Imagine 86

Casă parter 95 mp 4 camere – proiect nou, Platou Prundu

ID: P739 Pitesti, Prundu 115
211.750€
Descriere
NOBLE NEST IMOB vă propune spre vânzare o casă modernă, aflată în faza de proiect, ce urmează a fi construită pe Platoul Prundu – o zonă rezidențială apreciată pentru liniște, priveliști deschise și acces facil către oraș. Proprietatea este ideală pentru cei care își doresc o locuință nouă, bine gândită, având posibilitatea de personalizare.

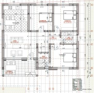
SUPRAFEȚE:
• 📐 Suprafață utilă: 95 mp
• 🌿 Terasă: 11 mp
• 🌱 Suprafață teren: 500 mp
• 🚗 2 locuri de parcare

COMPARTIMENTARE:
• 🛋️ Living cu bucătărie open space
• 🛏️ 3 dormitoare, dintre care unul cu baie proprie
• 🚿 2 băi
• 🚪 Hol
• 🌿 Terasă exterioară

DETALII PROIECT:
• 🏡 Casă dispusă exclusiv pe parter
• 🆕 Construcție nouă, realizată conform standardelor actuale
• 🎨 Posibilitate de personalizare a finisajelor - finisajele nu sunt incluse în preț, acestea putând fi realizate cu echipa dezvoltatorului (prețul final al casei fiind de aprox. 200.000 euro +TVA) sau pe cont propriu.

TERMEN DE FINALIZARE:
• 📅 Aproximativ noiembrie–decembrie, în funcție de data semnării antecontractului

💶 Prețul afișat este cu TVA inclus.

O locuință echilibrată, cu un teren generos și un concept modern, ideală pentru o familie care își dorește confort, funcționalitate și un cadru liniștit.

✨ NOBLE NEST IMOB – Conectăm oamenii cu destinația potrivită.
Caracteristici
  • ID:P739
  • Nr. camere:4
  • Nr. dormitoare:3
  • S. utila:94.29 mp
  • S. terase:11.43 mp
  • S. utila totala:125.64 mp
  • S. construita:114.21 mp
  • S. teren:500.00 mp
  • Nr. bucatarii:1
  • Nr. bai:2
  • Nr. parcari:2
  • An constructie:2026
  • Structura rezistenta:Caramida
Specificatii
Curent
Apa
Canalizare
Gaz
CATV
Acces internet
Centrala proprie
Izolatie Exterior
Vopsea lavabila
Faianta
Parchet
Gresie
Ferestre Termopan
Bucatarie Nemobilata
Bucatarie Neutilata
Nemobilat
Curte
Localizare
MIHAIL MINCA
Expert Broker
Esti interesat de aceasta proprietate ?
Proprietati similare
TOP De vanzare Imagine 895
Casă design unic P+E – Prelungirea Craiovei
Pitesti, Prelungirea Craiovei 190.000€
4 camere 3 bai 130mp
De vanzare Imagine 1440
Casă de vânzare - Ștefăneștii Noi
Pitesti, Exterior Sud 200.000€
4 camere 2 bai 180mp
De vanzare Imagine 1097
Casă parter 100 mp 4 camere – proiect nou, Platou Prundu
Pitesti, Prundu 199.650€
4 camere 2 bai 99.39mp
0% comision De vanzare Imagine 1146
Casă modernă, Ciocănăi – 3 km de Trivale, COMISION 0%
Pitesti, Exterior Vest 195.500€ 196.500€
3 camere 2 bai 207mp
De vanzare Imagine 1244
Casă duplex, 4 camere – Cartier Brătieni, Ștefănești
Stefanesti, Nord 210.000€ + TVA
4 camere 3 bai 120mp