Imagine 86

Casă duplex, 4 camere – Cartier Brătieni, Ștefănești

ID: P711 Stefanesti, Nord 11
210.000€ + TVA
Descriere
NOBLE NEST IMOB vă prezintă o casă tip duplex modernă, situată în renumitul cartier Brătieni din Ștefănești, o zonă apreciată pentru liniște, infrastructură completă și priveliștea deosebită asupra orașului Pitești.

🏡 DETALII PROPRIETATE:

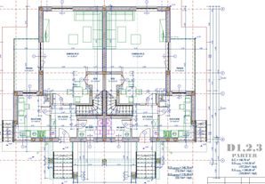
✅ Suprafață utilă: 120 mp
✅ Suprafață construită: 150 mp
✅ Regim de înălțime: parter + etaj + pod spațios cu acces prin scară pliantă
✅ Parter: living generos de 35,8 mp, bucătărie, baie, spațiu de depozitare, hol și terasă
✅ Etaj: 3 dormitoare dintre care unul este matrimonial (cu baie și dressing), baie comună și hol de acces
✅ Pod generos, excelent pentru depozitare

📍 AVANTAJE:

✅ Zonă exclusivistă, cu vedere către orașul Pitești
✅ Posibilitatea cumpărătorului de a-și alege finisajele: parchet, gresie, faianță, scară etc.
✅ Cartier construit unitar de același dezvoltator – infrastructură modernă și sigură
✅ Construcție solidă: zidărie Porotherm, termoizolație cu vată minerală bazaltică de 10 cm grosime la exterior și vata minerala în grosime de 5 cm la interior, structuri din beton armat
✅ Construcție solidă: fundații continue din beton armat și structură de rezistență calculată să facă față seismelor conform normativelor în vigoare
✅ Utilități complete: apă, canalizare, gaze, energie electrică, drumuri asfaltate și iluminat public

Se vinde la stadiul actual „la alb”, cu posibilitatea personalizării finisajelor după preferințe.

💰 Prețul nu include TVA.

📞 Nu rata șansa de a te bucura de confortul unei case spațioase, construite cu atenție la detalii, amplasată într-o zonă liniștită și bine conectată la oraș!

🔝 NOBLE NEST IMOB – Alegerea inteligentă în imobiliare!
Caracteristici
  • ID:P711
  • Nr. camere:4
  • Nr. dormitoare:3
  • S. utila:120.00 mp
  • S. terase:9.45 mp
  • S. construita:150.00 mp
  • S. teren:509.50 mp
  • Nr. bucatarii:1
  • Nr. bai:3
  • Nr. parcari:2
  • Nr. fronturi:1
  • An constructie:2025
  • Structura rezistenta:Beton
  • Regim inaltime:P+1
Specificatii
Curent
Apa
Canalizare
Gaz
Centrala proprie
Incalzire pardoseala
Izolatie Exterior
Izolatie Interior
Vopsea lavabila
Ferestre PVC
Ferestre Aluminiu
Ferestre Termopan
Spatiu depozitare
Dressing
Gradina
Localizare
MIHAIL MINCA
Expert Broker
Esti interesat de aceasta proprietate ?
Proprietati similare
TOP De vanzare Imagine 895
Casă design unic P+E – Prelungirea Craiovei
Pitesti, Prelungirea Craiovei 190.000€
4 camere 3 bai 130mp
De vanzare Imagine 1440
Casă de vânzare - Ștefăneștii Noi
Pitesti, Exterior Sud 200.000€
4 camere 2 bai 180mp
De vanzare Imagine 1101
Casă parter 95 mp 4 camere – proiect nou, Platou Prundu
Pitesti, Prundu 211.750€
4 camere 2 bai 94.29mp
De vanzare Imagine 1097
Casă parter 100 mp 4 camere – proiect nou, Platou Prundu
Pitesti, Prundu 199.650€
4 camere 2 bai 99.39mp
0% comision De vanzare Imagine 1146
Casă modernă, Ciocănăi – 3 km de Trivale, COMISION 0%
Pitesti, Exterior Vest 195.500€ 196.500€
3 camere 2 bai 207mp