Imagine 86

Casă design unic P+E – Prelungirea Craiovei

ID: P695 Pitesti, Prelungirea Craiovei 151
190.000€
Descriere
✨ NOBLE NEST IMOB vă prezintă o proprietate ideală pentru cei care caută confort, spațiu generos, eficiență energetică și un design unic, beneficiind de o izolație termică foarte bună și oferind posibilitatea de a-și personaliza interiorul după propriul stil – o casă nouă, amplasată într-una dintre cele mai căutate zone rezidențiale: Prelungirea Craiovei, Pitești.

CARACTERISTICI PRINCIPALE:

📐 Suprafață teren: 315 mp
🏗 Regim de înălțime: Parter + Etaj + Terasă circulabilă pe acoperiș

PARTER – FUNCȚIONALITATE ȘI CONFORT:
LIVING: ✨ spațios, luminos, perfect pentru familie
BUCĂTĂRIE: ✨ complet separată, cu acces facil la zona de dining
TERASĂ: ✨ cu acces din bucătărie
ZONĂ DE BIROU: ✨ ideal pentru work-from-home (poate fi închisă)
BAIE: ✨ modernă
CAMERĂ TEHNICĂ: ✨ utilă pentru depozitare și echipamente


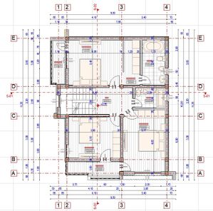
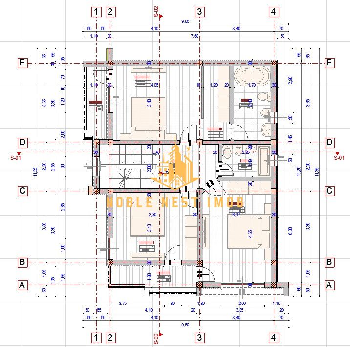
ETAJ – ZONA DE NOAPTE:
DORMITOR MATRIMONIAL: ✨ baie proprie + balcon separat & posibilitate pentru dressing
2 DORMITOARE SECUNDARE: ✨ luminoase și bine compartimentate, cu acces la blacon
BAIE: ✨ spațioasă
BALCON: ✨ cu vedere deschisă
HOL: ✨ cu geam mare spre exterior

TERASĂ PE ACOPERIȘ:
Unul dintre cele mai atractive elemente ale proprietății – terasă circulabilă de 32 mp și o zonă de depozitare interioară, perfectă pentru:
✅ zonă de relaxare
✅ spațiu pentru grătar
✅ amenajare tip sky-lounge
✅ iglu

CONSTRUCȚIE ȘI FINISAJE:

✅ Casă finalizată la exterior, cu un aspect unic și bine proporționat
✅ Acoperiș izolat cu vată minerală de sticlă cu aluminiu (2 straturi)
✅ La interior, viitorul proprietar își poate alege integral finisajele, acestea nefiind incluse în prețul afișat
✅ O oportunitate excelentă de a personaliza complet locuința după gust
✅ Izolație exterioară – polistiren expandat de 10 mm
✅ Izolație interioară – vată minerală de 5 mm pe pereți + rigips & vată bazaltică cu aluminiu pe tavan + rigips
✅ Podele izolate cu polistiren extrudat de 5 mm
✅ Casa este gândită pentru montare panouri fotovoltaice (acoperișul este îndreptat spre soare)

LOCAȚIE:
Situată într-o zonă foarte apreciată – Prelungirea Craiovei, cu acces rapid către:
✅ școli și grădinițe
✅ magazine și supermarketuri
✅ autostrada A1

PREȚURI:
💰 190.000 € pentru casă în stadiul actual
💰 235.000 € pentru casă finalizată (finisajele oferite vor fi peste medie, dublă încălzire – electrică, prin fibră de carbon și pe gaz)
💰 250.000 € pentru casă în stadiul actual, cu 600 mp teren
💰 295.000 € pentru casă finalizată (finisajele oferite vor fi peste medie, dublă încălzire – electrică, prin fibră de carbon și pe gaz), cu 600 mp teren

ℹ️ Prețul afișat poate suferi modificări în funcție de evoluția lucrărilor.

📞 Nu rata șansa de a te muta într-o casă modernă, într-o zonă în plină dezvoltare, cu posibilitatea de a o personaliza exact cum îți dorești!

✨ NOBLE NEST IMOB – Inspirație pentru un nou început.
Caracteristici
  • ID:P695
  • Nr. camere:4
  • Nr. dormitoare:3
  • S. utila:130.00 mp
  • S. terase:50.00 mp
  • S. teren:315.00 mp
  • Nr. bucatarii:1
  • Nr. bai:3
  • Nr. balcoane:2
  • Nr. parcari:2
  • An constructie:2025
  • Regim inaltime:P+1
Specificatii
Curent
Apa
Canalizare
Gaz
CATV
Acces internet
Centrala proprie
Incalzire pardoseala
Izolatie Exterior
Izolatie Interior
Ferestre Termopan
Dressing
Curte
Localizare
MIHAIL MINCA
Expert Broker
Esti interesat de aceasta proprietate ?
Proprietati similare
TOP 0% comision De vanzare Imagine 1350
CASĂ 4 CAMERE 125 MP – MĂRĂCINENI, JUDEȚUL ARGEȘ
Pitesti, Exterior Est 166.900€ + TVA
4 camere 3 bai 125.72mp
De vanzare Imagine 1588
Casă elegantă | Stoenari – Smeura | 4 camere
Pitesti, Exterior Vest 178.000€
4 camere 2 bai 106.80mp
De vanzare Imagine 1440
Casă de vânzare - Ștefăneștii Noi
Pitesti, Exterior Sud 200.000€
4 camere 2 bai 180mp
De vanzare Imagine 1453
VÂNZARE CASĂ 148 MP – OARJA, JUDEȚUL ARGEȘ
Pitesti, Exterior Sud 162.000€
5 camere 2 bai 148mp
0% comision De vanzare Imagine 1328
CASĂ 4 CAMERE – MĂRĂCINENI, JUDEȚUL ARGEȘ
Pitesti, Exterior Est 162.000€
4 camere 2 bai 98.85mp
De vanzare Imagine 1101
Casă parter 95 mp 4 camere – proiect nou, Platou Prundu
Pitesti, Prundu 211.750€
4 camere 2 bai 94.29mp