Imagine 86

CASĂ P+E + SUBSOL LA ROȘU | BĂBANA, ARGEȘ | LA LIMITA PĂDURII

ID: P823 Pitesti, Exterior Vest 23
119.000€
Descriere
✨NOBLE NEST IMOB vă propune spre vânzare o proprietate deosebită, construită în 2023, situată într-o zonă extrem de liniștită din Băbana, Argeș, la limita pădurii, cu view superb. Casa se vinde la roșu, oferind noului proprietar libertatea de a-și pune amprenta prin alegerea finisajelor și a sistemului de încălzire dorit.


📐 SUPRAFEȚE ȘI DATE GENERALE:

• suprafață utilă casă: 166,5 mp
• suprafață terase: 32,9 mp
• suprafață subsol: 90 mp
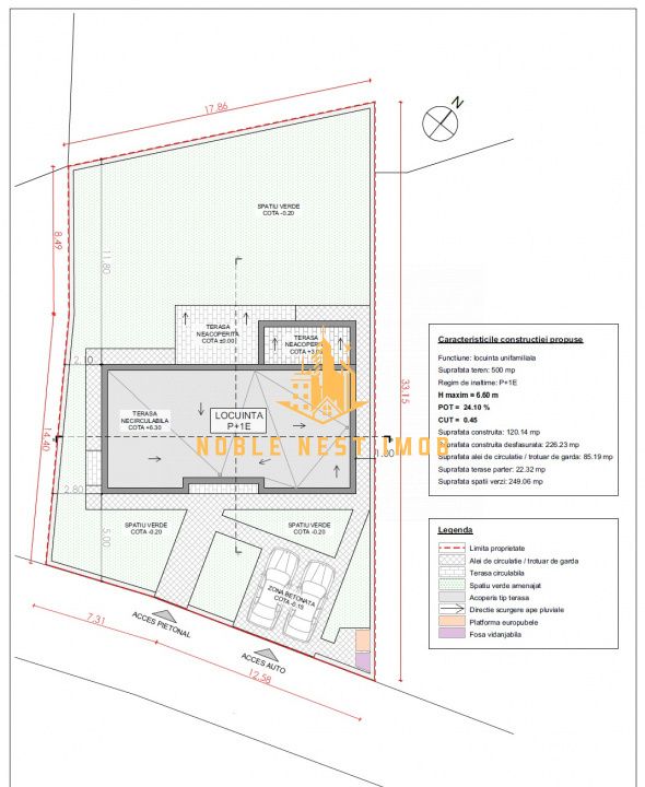
• teren: 500 mp
• front stradal: 20 ml
• 2 locuri de parcare


🔹 COMPARTIMENTARE PARTER:

• hol generos: 18,4 mp (include vestibul)
• living de 44,65 mp cu bucătărie open space și zonă de dining
• dormitor / birou: 16,35 mp
• grup sanitar: 2,8 mp
• cameră tehnică: 8,65 mp
• terasă: 17,2 mp


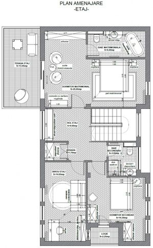
🔹 COMPARTIMENTARE ETAJ:

• hol: 9,6 mp
• dormitor matrimonial de 25,65 mp, cu baie matrimonială (6,5 mp), zonă dressing și terasă (13,45 mp)
• dormitor: 14,05 mp
• dormitor: 14,3 mp
• logie: 2,25 mp (acces din ambele dormitoare secundare)
• baie secundară: 3,95 mp
• debara: 1,7 mp


🔹 SUBSOL (ACCES INTERIOR ȘI EXTERIOR):

• 4 încăperi
• suprafață totală 90 mp
• ideal pentru hobby, relaxare, depozitare sau spațiu tehnic


🧱 DETALII CONSTRUCTIVE:

• construcție din cărămidă Porotherm 30 cm
• acoperiș cu izolație 20 cm extrudat – standard NZEB
• garanție acoperiș 10 ani
• tâmplărie premium Veka Motion 82 (MXM Softline 82 MD)
• valoare tâmplărie + montaj: aprox. 25.000 € (dovadă cu factură)
• garanție rame 5 ani


⚡ UTILITĂȚI ȘI OPȚIUNI:

• apă
• curent 220V / 380V
• internet
• opțiune stație de epurare sau fosă septică (neinclusă în preț)
• încălzire la alegere: pompă de căldură / centrală electrică / fibră de carbon / alt sistem dorit (neinclusă în preț)

Proprietatea se remarcă prin poziționarea excelentă, liniștea zonei și arhitectura aparte, fiind ideală pentru cei care își doresc un proiect personalizat într-un cadru natural.

💰 Preț ușor negociabil.

📌 Comision agenție: 1% din valoarea de tranzacție.

✨ NOBLE NEST IMOB – Unde eleganța întâlnește destinația perfectă.
Caracteristici
  • ID:P823
  • Nr. camere:5
  • Nr. dormitoare:4
  • S. utila:166.50 mp
  • S. terase:32.90 mp
  • S. teren:500.00 mp
  • Nr. bucatarii:1
  • Nr. bai:3
  • Nr. balcoane:1
  • Nr. parcari:2
  • Front stradal:20.00 m
  • Structura rezistenta:Caramida
  • Regim inaltime:P+1
Specificatii
Curent
Apa
Curent trifazic
CATV
Acces internet
Curte
Localizare
MIHAIL MINCA
Expert Broker
Esti interesat de aceasta proprietate ?
Proprietati similare
De vanzare Imagine 1527
Casă tip duplex I 3 camere I 77 mp
Pitesti, Trivale 135.000€
3 camere 2 bai 77mp
De vanzare Imagine 1239
CASĂ P+E+M, 2340 mp teren - VALEA MĂRULUI
Pitesti, Exterior Nord 130.000€ 140.000€
4 camere 2 bai 152mp
De vanzare Imagine 177
Turcesti - 2 case, curte comună, 100 mp + 920 mp teren
Pitesti, Exterior Sud 105.000€
7 camere 4 bai 100mp