Imagine 86

Apartament modern, 3 camere, finisaje premium – Găvana III

ID: P677 Pitesti, Gavana 3 1
170.000€ + TVA
Descriere
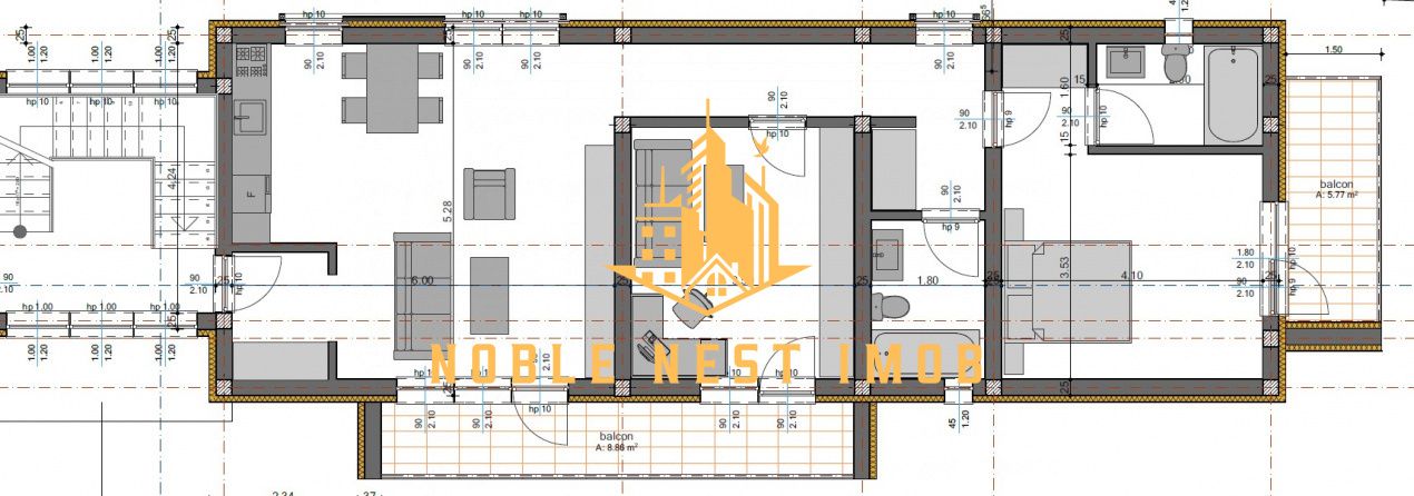
✨ NOBLE NEST IMOB vă prezintă un apartament elegant și bine compartimentat, situat într-un imobil tip P+1E din cartierul Găvana III – o zonă apreciată pentru liniște, accesibilitate și siguranță.

🏠 DETALII APARTAMENT:

✅ Compartimentare ideală: living spațios, bucătărie, 2 dormitoare (dintre care unul matrimonial)
✅ 2 băi moderne
✅ Terasă generoasă perfectă pentru relaxare
✅ Hol de acces
✅ Suprafață optimă pentru confort și funcționalitate
✅ 2 locuri de parcare proprii

🏢 DETALII IMOBIL:

✅ Regim de înălțime: P+1E
✅ Construcție din cărămidă Porotherm – eficiență termică și rezistență excelentă
✅ Încălzire în pardoseală totală pentru un confort uniform
✅ Centrală termică Bosch sau Viessmann
✅ Curte comună de 800 mp, complet împrejmuită și cu acces securizat
✅ Bloc boutique, cu doar 4 apartamente (2 pe nivel), oferind intimitate și comunitate restrânsă
✅ Disponibile apartamente atât la parter, cât și la etajul 1

📍 AVANTAJE:

✅ Zonă rezidențială liniștită și sigură
✅ Acces rapid către punctele de interes din Pitești
✅ Ideal atât pentru locuință permanentă, cât și pentru investiție
✅ Finisaje de calitate superioară și design modern

💰 Prețul nu include TVA.

🕒 Termen de finalizare – nu mai târziu de 31.12.2026 (în funcție de vânzări).

📞 Alege confortul, siguranța și eleganța într-un apartament modern, situat într-una dintre cele mai căutate zone din Pitești – Găvana!

🔝 NOBLE NEST IMOB – Alegerea inteligentă în imobiliare!
Caracteristici
  • ID:P677
  • Nr. camere:3
  • Nr. dormitoare:2
  • S. utila:110.00 mp
  • Comp.:Decomandat
  • Confort:1
  • Etaj:Etaj 1
  • Nr. bucatarii:1
  • Nr. bai:2
  • Nr. parcari:2
  • An constructie:2025
  • Tip imobil:Bloc
  • Regim inaltime:P+1
Specificatii
Curent
Apa
Canalizare
Gaz
Centrala proprie
Incalzire pardoseala
Izolatie Exterior
Vopsea lavabila
Faianta
Parchet
Gresie
Ferestre Termopan
Interfon
Curte
Localizare
MIHAIL MINCĂ
Expert Broker
Esti interesat de aceasta proprietate ?
Proprietati similare
Imagine 46
TOP 0% comision de vanzare
Apartament premium, 3 camere, 83mp - NEGRU VODA, COMISION 0%
Pitesti, Central 181.900€ + TVA
3 camere 2 bai 83mp
Imagine 378
0% comision de vanzare
Apartament Renovat LUX 2025, ULTRACENTRAL, Pitești, COMISION 0%
Pitesti, Ultracentral 160.000€
2 camere 1 baie 50mp
Imagine 165
0% comision de vanzare
Apartament premium, 3 camere, 78mp - CENTRU Pitești, COMISION 0%
Pitesti, Central 172.200€ + TVA
3 camere 2 bai 78mp